Pixeldot

Kundanpassat bostadshus i Gunnilse

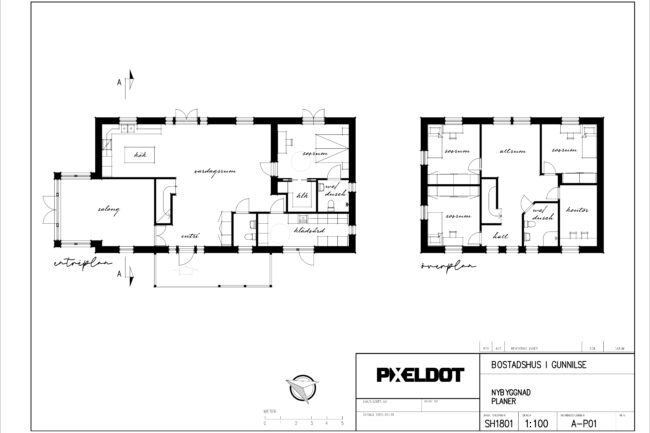
Det här bostadshuset ritade vi helt från de kundönskemålen som fanns rörande ytorna, antalet rum och en del specifika önskemål såsom “Walkin-closet” och bad till föräldrasovrummet.

PIXELDOT
  • KLIENT

    Privat

  • ÅR

    2018

  • TJÄNSTER

    Bygglovsritningar

0 / 1
0 / 2
  • DELA
Contact

Vi vill höra av dig.

Välkommen att kontakta oss för mer information
om någon av våra produkter eller tjänster.

Låt oss prata om dina projekt

Visa alla designalternativ — med ytbehandlingar, material, dörrar, fönster, etc. Med 3D exteriör-rendering är det en plätt.

Låt oss prata om dina idéer

Imponera på dina kunder med bilder som visar din exteriördesign i detalj — i en fotorealistisk miljö, med vacker belysning.

Låt oss prata om ditt innehåll

Sälj fastigheter snabbare och enklare än någonsin tidigare — med uppseendeväckande 3D-mästerverk som hjälper dina kunder att bestämma hur de vill ha det.

ring: 0705-808615

Contact

Vi använder cookies för att identifiera användare som unika men anonyma individer.
Det hjälper oss att registrera antalet besökare och ger oss information om hur många användare vi har på sidan och vad de gör. I vissa fall använder vi cookies även för att komma ihåg inställningar som användaren gör.

Privacy Settings saved!
Privacy Inställningar

Vi använder cookies för att ge dig den bästa onlineupplevelsen. Genom att godkänna accepterar du användningen av cookies i enlighet med vår cookiepolicy.

These cookies are necessary for the website to function and cannot be switched off in our systems.

In order to use this website we use the following technically required cookies
  • wordpress_test_cookie
  • wordpress_logged_in_
  • wordpress_sec

Avvisa alla tjänster
Acceptera alla tjänster